Welcome to the official website of Shanghai Industrial Boiler Co., Ltd. / Shanghai Industrial Boiler (Wuxi) Co., Ltd.

Home
TEL:0510-88787772

Biomass boiler

Steam oven: 10-130t/h
Water heater: 7-116MW
Boiler parameters:
Pressure: 1.0-9.8MPa
Temperature: 184-540 ° C
Pressure: 1.0-1.6MPa
Temperature: 95-150 ° C
Boiler fuel: waste wood, straw, bagasse, palm shell, biomass pellets, etc.
Combustion method: circulating fluidized bed, water-cooled vibrating grate, reciprocating grate, chain grate, (water-cooled) fixed grate, lower servo, etc.

Details


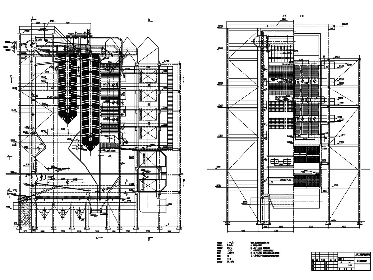
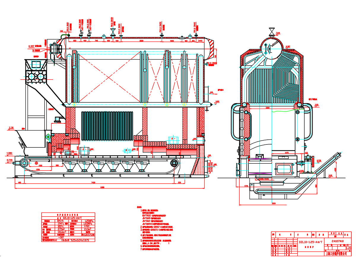
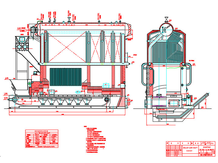
110 tons of sugar cane baggage water-cooled vibration grate furnace


24107M.0dwg

Biomass boiler:
The company adopts appropriate fuel collection, transportation and pre-furnace fuel delivery methods for fuel characteristics, and adopts a boiler structure to configure a suitable combustion system and air distribution method. The problem of coking in the furnace, insufficient combustion and easy corrosion of the heated surface of the tail are solved.

Boiler capacity:
Steam oven: 10-130t/h
Water heater: 7-116MW
Boiler parameters:
Pressure: 1.0-9.8MPa
Temperature: 184-540 ° C
Pressure: 1.0-1.6MPa
Temperature: 95-150 ° C
Boiler fuel: waste wood, straw, bagasse, palm shell, biomass pellets, etc.
Combustion method: circulating fluidized bed, water-cooled vibrating grate, reciprocating grate, chain grate, (water-cooled) fixed grate, lower servo, etc.

Boiler features:
a. Adopting reasonable feeding system, the feeding uniformity is good, the load tracking property is good, and the automation level is high.
b. Use reasonable combustion equipment to design layer combustion, suspension combustion or layer combustion and suspension combustion to ensure that the fuel is fully combusted and burned.
c. Reasonably arrange the heated surface and organize into a sufficient combustion aerodynamic field to solve the problem of insufficient combustion and easy corrosion of the heated surface of the tail.
d. Select a reasonable furnace outlet smoke temperature and a convective heating surface flue gas flow rate to reduce boiler ash or wear.
2018/09/15 14:24:44 18292

Related products

Copy right ? 2018 Shanghai Industrial Boiler Co., Ltd.

Record number: Su ICP No. 18041342